
丽江主城区,
大研上瑞柏华·瑞府即将启售!
紧邻市政府,毗邻祥和广场。
划片祥和学校,人车全分流。
丽江大研上瑞柏华·瑞府
从195㎡到423㎡户型多样
这波探房必须安排到位!
(点击以下观看视频)
本次探房,我们特意邀请到了丽江大研房地产开发有限公司副总经理和江波,带我们解锁瑞府最具代表性的三套户型,覆盖不同家庭的需求,每一套都有专属亮点!

(图片由丽江大研房地产开发有限公司提供)
(本效果图仅为概念展示 具体以实际交付为准)
第一套:195.03㎡入门级大平层|首次改善首选,品质不打折
【户型亮点】195.03㎡ | 层高有4.2米(一楼),层高有3.9米(二楼)
| 可打通做横厅 | 瑞府1号楼
作为入门级大平层,这套户型直接打破了“入门=将就”的刻板印象。据和副总介绍,这是瑞府1号楼1A/2A/3A户型,经典4房设计,一梯两户+独立玄关,私密性拉满。
层高有4.2米(一楼),层高有3.9米(二楼),没有普通住宅的压抑感,站在客厅里,视野开阔又通透。客厅宽敞,放完大沙发,还能留出空间做整面书架。

(图片由丽江大研房地产开发有限公司提供)
(本效果图仅为概念展示 具体以实际交付为准)
更惊喜的是,瑞府采用的是大框架结构,和副总指着一面墙说:“这面墙可以打掉,与旁边卧室连通,做成7米以上的大横厅。”对于首次改善的家庭来说,这套户型总价门槛友好,却能拥有大平层的品质和舒适度,性价比杠杠滴!

(丽江大研上瑞柏华・瑞府户型实景拍摄 具体以实际交付为准)
(丽江融媒记者 桑震宇摄)
第二套:255至337㎡露台户型|把“第二客厅”搬上天
【户型亮点】337.36㎡+89.23㎡露台 | 255.73㎡+68.84㎡露台 |
瑞府1号楼独栋+189.㎡屋顶露台
入门级户型侧重实用,露台户型则注重居住体验,该户型露台面积可观。
没错,这套337.36㎡的户型,自带69.7㎡的超大露台!在丽江这样气候宜人的城市,露台就是专属的“休闲天地”——烧烤、喝茶,甚至种上喜欢的花草,把日子过成自己喜欢的样子,想想都惬意。


(图片由丽江大研房地产开发有限公司提供)
(本效果图仅为概念展示,具体以实际交付为准)

(图片由丽江大研房地产开发有限公司提供)
(本效果图仅为概念展示,具体以实际交付为准)
据悉,瑞府的露台户型不止这一套:瑞府2号楼2A户型带68.84㎡露台;1号楼2C户型带63.56㎡露台:还有1号楼西房(独栋),自带189㎡的屋顶露台,堪称“露台爱好者的福音”。

(丽江大研上瑞柏华・瑞府户型实景拍摄 具体以实际交付为准)
(丽江融媒记者 桑震宇摄)

(丽江大研上瑞柏华・瑞府户型实景拍摄 具体以实际交付为准)
(丽江融媒记者 桑震宇摄)
室内空间同样能打通,255至337㎡的面积,设计成4至5房,主卧套房带衣帽间+双台盆,客厅可做成10米以上的大横厅。在丽江主城区中心地段,能同时拥有大平层和超大露台。
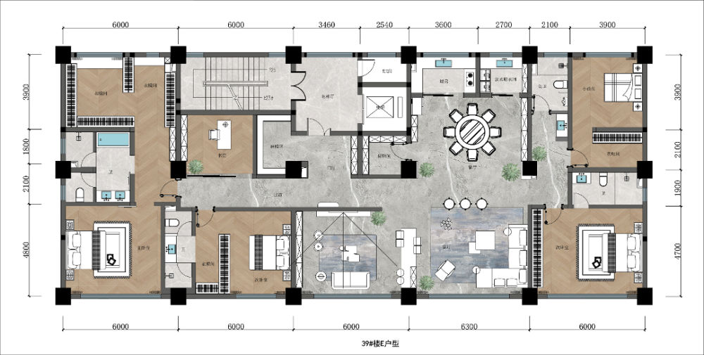
第三套:423.94㎡大平层|阔绰尺度,适配高端需求
【户型亮点】423.94㎡ | 层高4.2米(5楼) | 共两席 | 瑞府1号楼
看完前两套,我们重点了解423.94㎡户型,该户型位于瑞府1号楼4楼、5楼,各有一套,数量较少。

(图片由丽江大研房地产开发有限公司提供)
(本效果图仅为概念展示,具体以实际交付为准)

(图片由丽江大研房地产开发有限公司提供)
(本效果图仅为概念展示,具体以实际交付为准)
该户型空间开阔,原始客厅面宽超过8米,打通旁边功能房后,可形成12米以上的横厅。餐厅可容纳20人圆桌就座,能满足大家庭聚会需求。
据和副总介绍,该户型可规划5至6个套房,每个卧室均可配备独立卫浴,能满足大家庭的居住需求。户型层高优势明显,4楼层高3.9米,5楼层高4.2米,空间改造灵活性较高。
该户型尺度阔绰,在丽江主城区同类产品中表现突出,适合高端改善及大家庭居住使用。

(丽江大研上瑞柏华・瑞府户型实景拍摄 具体以实际交付为准)
(丽江融媒记者 桑震宇摄)
据和副总介绍,瑞府采用人车分流设计,车辆可以直接入地库,地面没有车辆通行,老人遛弯、孩子骑滑板车,不用担心安全,也没有尾气和噪音的困扰,整个园区安静又清幽。

(丽江大研上瑞柏华・瑞府户型实景拍摄 以实际交付为准)
(丽江融媒记者 桑震宇摄)
更贴心的是,瑞府全系户型均支持私人订制,内部格局可随心规划。只要是合理需求,都能为你量身打造专属空间,开发商将在规范框架内,按你的个性化修改需求以毛坯形式交付。从此告别千篇一律的标准化样板间,真正拥有独一无二的理想居所。

(图片由丽江大研房地产开发有限公司提供)
(本效果图仅为概念展示,具体以实际交付为准)
✅ 想在丽江主城区换大房子的家庭
✅ 对层高、户型改造有要求的购房者
✅ 想要露台、又不想住远郊的改善客群
✅ 愿意自己设计内部格局、不想要“流水线住房”的人
销售信息:
大研上瑞柏华·瑞府,现房即将启售。
具体户型、面积、价格,欢迎前往售楼部咨询。
售楼部地址:和风苑63号商铺(大研房产经纪公司)
咨询热线:0888-5170555

编导/曹金莲 桑震宇 李刚
编辑/曹金莲
编审/李文专 李蓉梅
【声明】如需转载丽江市融媒体中心名下任何平台发布的内容,请 点击这里 与我们建立有效联系。